1601 37th Street Vernon, British Columbia V1T 6G2

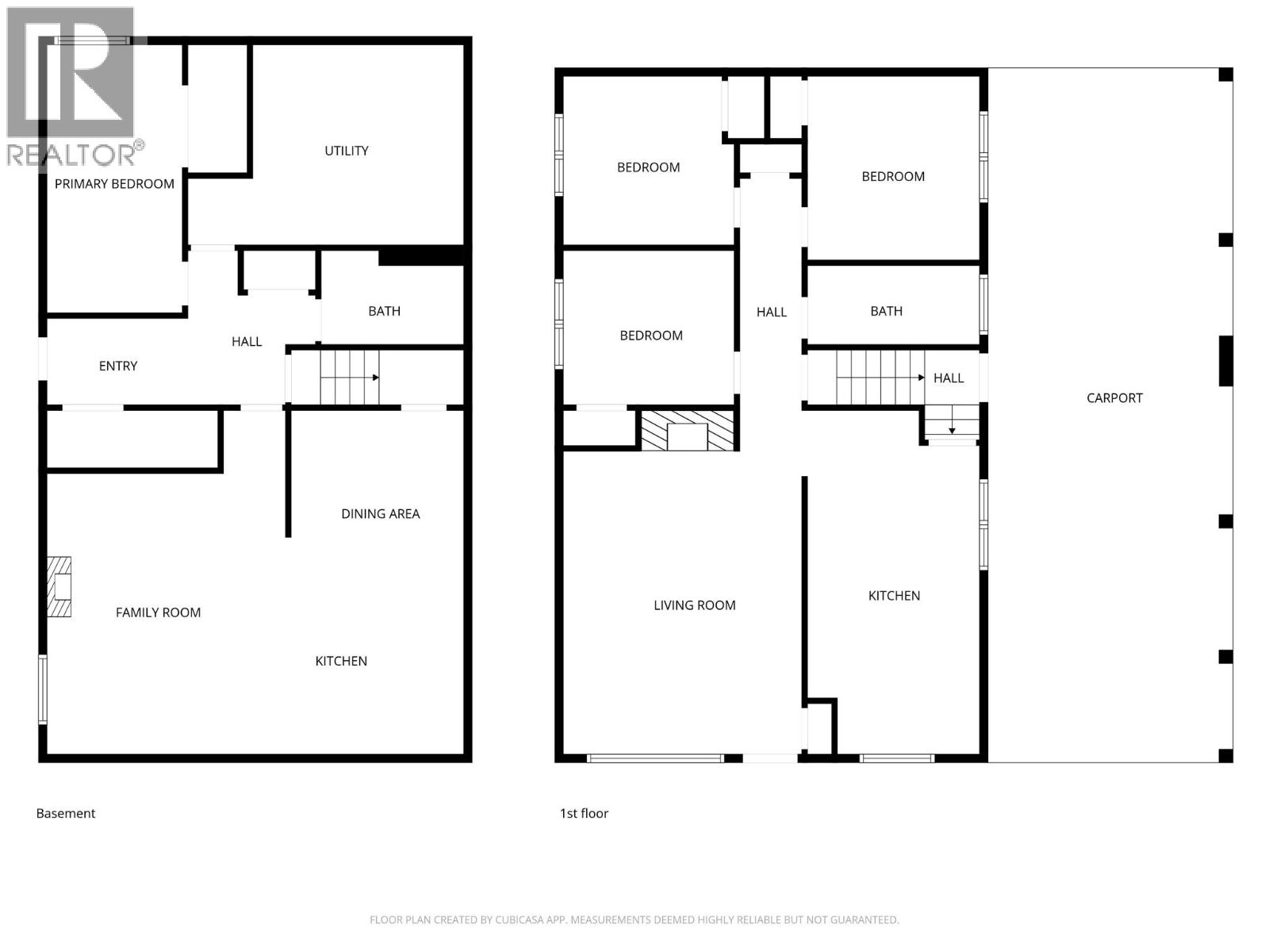
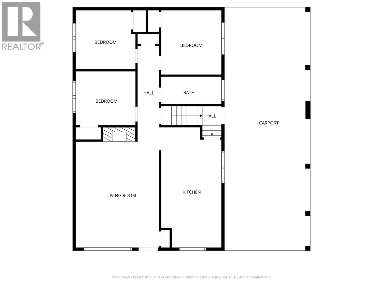
4 Bedroom 2 Bathroom 2,078 ft2
Fireplace Central Air Conditioning Forced Air, See Remarks Landscaped

$674,900

Located on a quiet no-through road in a family-friendly neighbourhood - just steps from Mission Hill Park and Mission Hill Elementary School, this versatile property is ideal for your family, with options for multi-generational living, investors, or buyers who are seeking a mortgage helper. The functional main floor offers 3 bedrooms, 1 bathroom, a well laid out kitchen, and a welcoming living room with a gas fireplace. A large picture window captures beautiful views toward The Rise, overlooking the rolling orchards and vineyards of Bella Vista. Downstairs, a fully self-contained 1 bedroom, 1 bathroom suite features its own private entrance, separate driveway, and dedicated laundry—perfect for family, guests, or potential rental income. In 2017, the seller completed many updates to the suite, including the addition of a 200-amp electrical panel, updated plumbing and windows, and the gas fireplace. The air conditioning and hot water tank were both replaced in 2024, offering additional peace of mind. Those who need additional parking will appreciate the extended 42-foot drive-through carport, providing access from both 37 street and the back alley. Step outside to your private, fully fenced backyard with ample space for children, pets, gardening, or a trampoline—a nice setting to fit your lifestyle. With income potential, and thoughtful updates, this property presents a great opportunity to enjoy the best of Vernon living. Call to arrange your showing today! (id:55236)

Property Details

MLS® Number 10379536
Property Type Single Family
Neigbourhood Mission Hill
Amenities Near By Airport, Park, Recreation, Schools
Community Features Family Oriented
Features Irregular Lot Size
Parking Space Total 6
View Type City View, Mountain View, Valley View, View (panoramic)

Building

Bathroom Total 2
Bedrooms Total 4
Appliances Refrigerator, Dryer, Range - Electric, Washer
Basement Type Full
Constructed Date 1967
Construction Style Attachment Detached
Cooling Type Central Air Conditioning
Exterior Finish Stucco
Fireplace Present Yes
Fireplace Total 2
Fireplace Type Insert
Flooring Type Carpeted, Ceramic Tile
Heating Type Forced Air, See Remarks
Roof Material Asphalt Shingle
Roof Style Unknown
Stories Total 2
Size Interior 2,078 Ft2
Type House
Utility Water Municipal Water

Parking

Additional Parking
Breezeway

Land

Access Type Easy Access
Acreage No
Fence Type Fence
Land Amenities Airport, Park, Recreation, Schools
Landscape Features Landscaped
Sewer Municipal Sewage System
Size Frontage 86 Ft
Size Irregular 0.2
Size Total 0.2 Ac|under 1 Acre
Size Total Text 0.2 Ac|under 1 Acre

Rooms

Level Type Dimensions
Lower Level Laundry Room 11'0'' x 13'1''
Main Level 4pc Bathroom 4'11'' x 10'7''
Main Level Bedroom 9'9'' x 10'7''
Main Level Bedroom 9'11'' x 10'7''
Main Level Primary Bedroom 11'2'' x 10'7''
Main Level Dining Room 10'7'' x 11'3''
Main Level Kitchen 9'9'' x 10'7''
Main Level Living Room 18'4'' x 14'4''
Additional Accommodation Dining Room 9'4'' x 11'2''
Additional Accommodation Kitchen 9'1'' x 11'10''
Additional Accommodation Living Room 17'6'' x 12'2''
Additional Accommodation Full Bathroom 4'10'' x 7'6''
Additional Accommodation Bedroom 14'3'' x 7'7''

https://www.realtor.ca/real-estate/29488963/1601-37th-street-vernon-mission-hill

Contact Us

Contact us for more information

Generating Captcha

Martin Von Holst
Personal Real Estate Corporation

(250) 241-5000
www.3pr.ca/
m.facebook.com/martin-von-holsokanagan-real-estate-710661069077401/
www.linkedin.com/in/martin-von-holst-87374710/

3 Percent Realty Inc.
4201-27th Street
Vernon, British Columbia V1T 4Y3

(250) 503-2246
(250) 503-2267
www.3pr.ca/

Your Favourites

 

No Favourites Found